+7 (920) 000 74 53

Режим работы 9:00 - 21:00

Энгельберг

Двухэтажный дом из клееного бруса в скандинавском стиле с 4 комнатами, 2 санузлами, мансардой, навесом, балконом и террасой

Общая площадь

264.2 м²

Этажей

2

Спален

4

Санузлов

2

Стоимость строительства уточняйте у менеджера

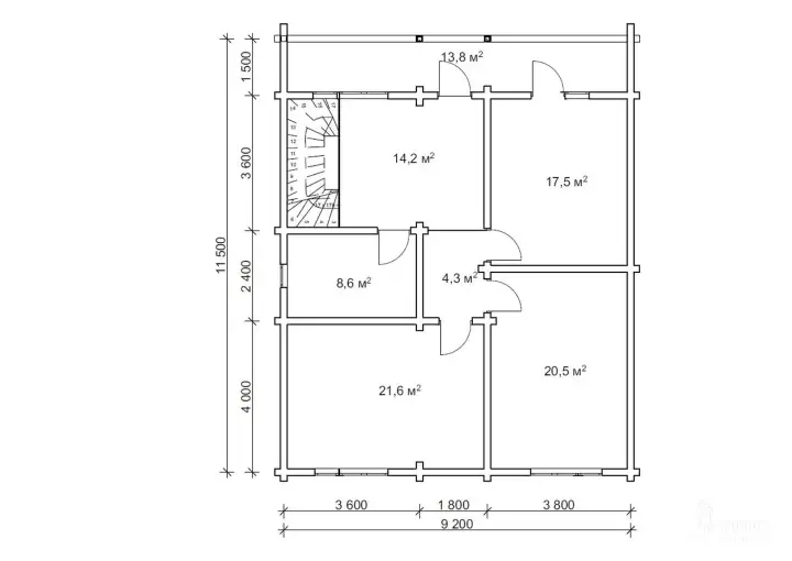
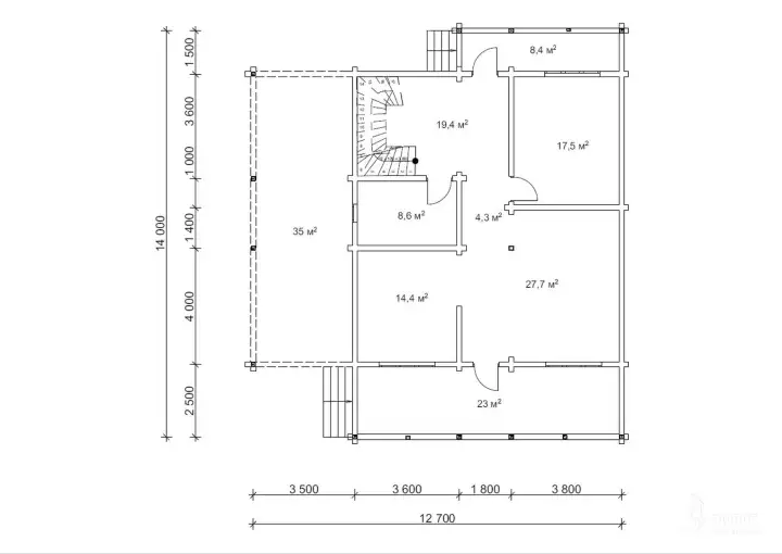
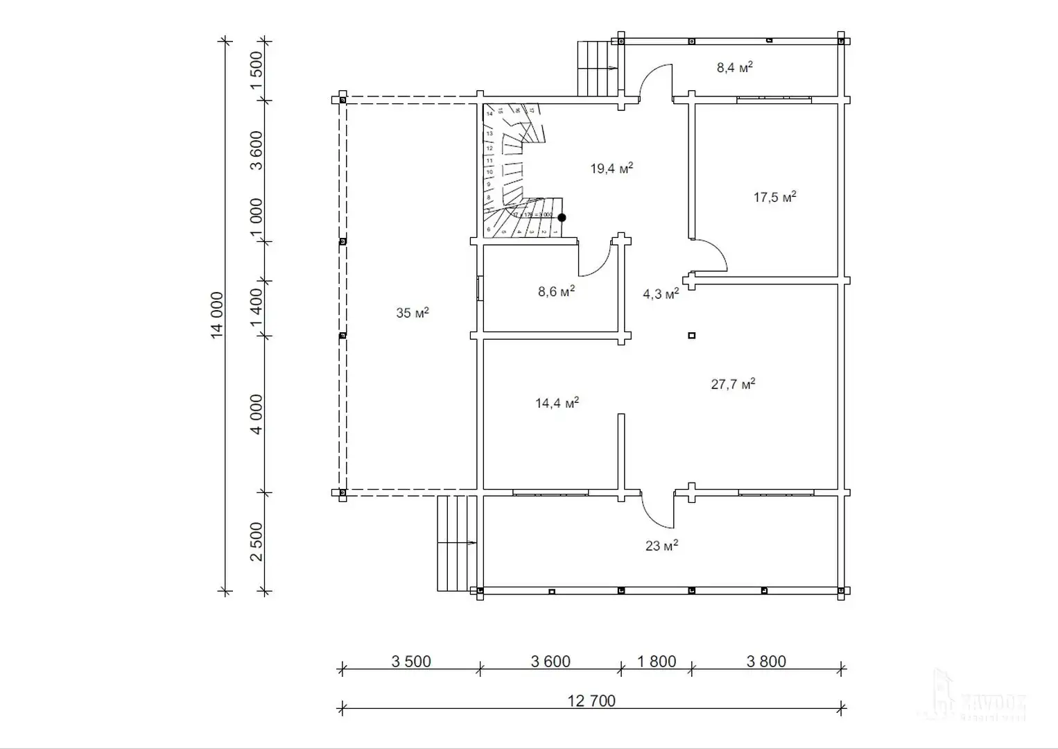
Планировка

  • Этаж 1
  • Этаж 2

Дополнительные опции

Окна
Окна
Двери
Двери
Погонаж
Погонаж
Лестницы
Лестницы

Комплектации

Группа ZAVDOZ предлагает строительство дома из клееного бруса под ключ или производство домокомплекта

  • Дом под ключ
  • Домокомплект
Проектирование
Фундамент
Стеновой комплект
Кровля
Окна и двери опционально
Отделка опционально
Сопровождение строительства
Проектирование
Стеновой комплект

Похожие дома

Бален

2 этажа

237 м²

Тироль

2 этажа

274.5 м²

Хофбург

Хофбург

Подробнее

2 этажа

215.9 м²

Каталог проектов

Получите бесплатно каталог проектов с актуальными ценами

Получите бесплатно каталог